| Ellenőrző
automata |
Szerelő
automata |
Egyedi
gép |
Rendszerterv | Egyedi
bútor |
Kapcsolat |
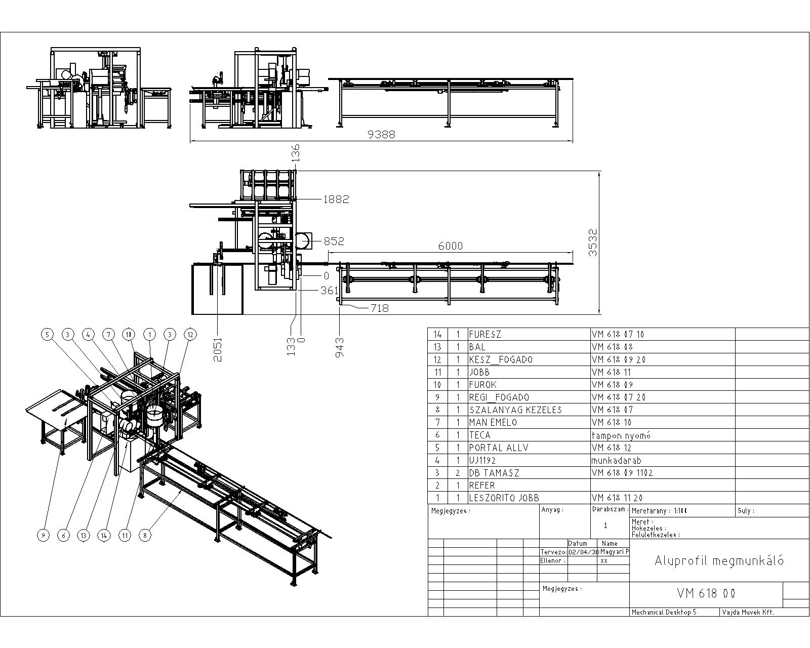
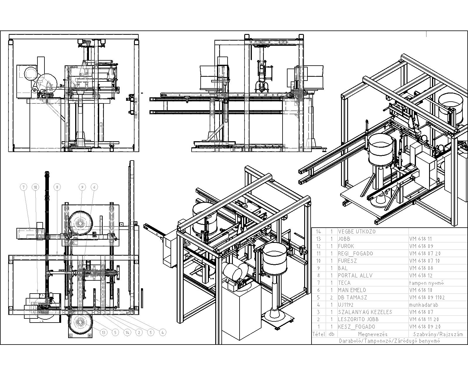
Automata profildaraboló és
megmunkáló a 6m száladagolóval >>tovább a központi egységre![]() |
| Automata
profildaraboló és megmunkáló központi egysége itt a méretrevágott aluprofil két végébe záródugókat nyom a berendezés illetve a profil hosszától függően 2...5 felfogófurattal látja el a daraboló, a dugózó és a fúró pozíciók között a függesztett manipulátor mozgatja a profilt ![]() |
| az
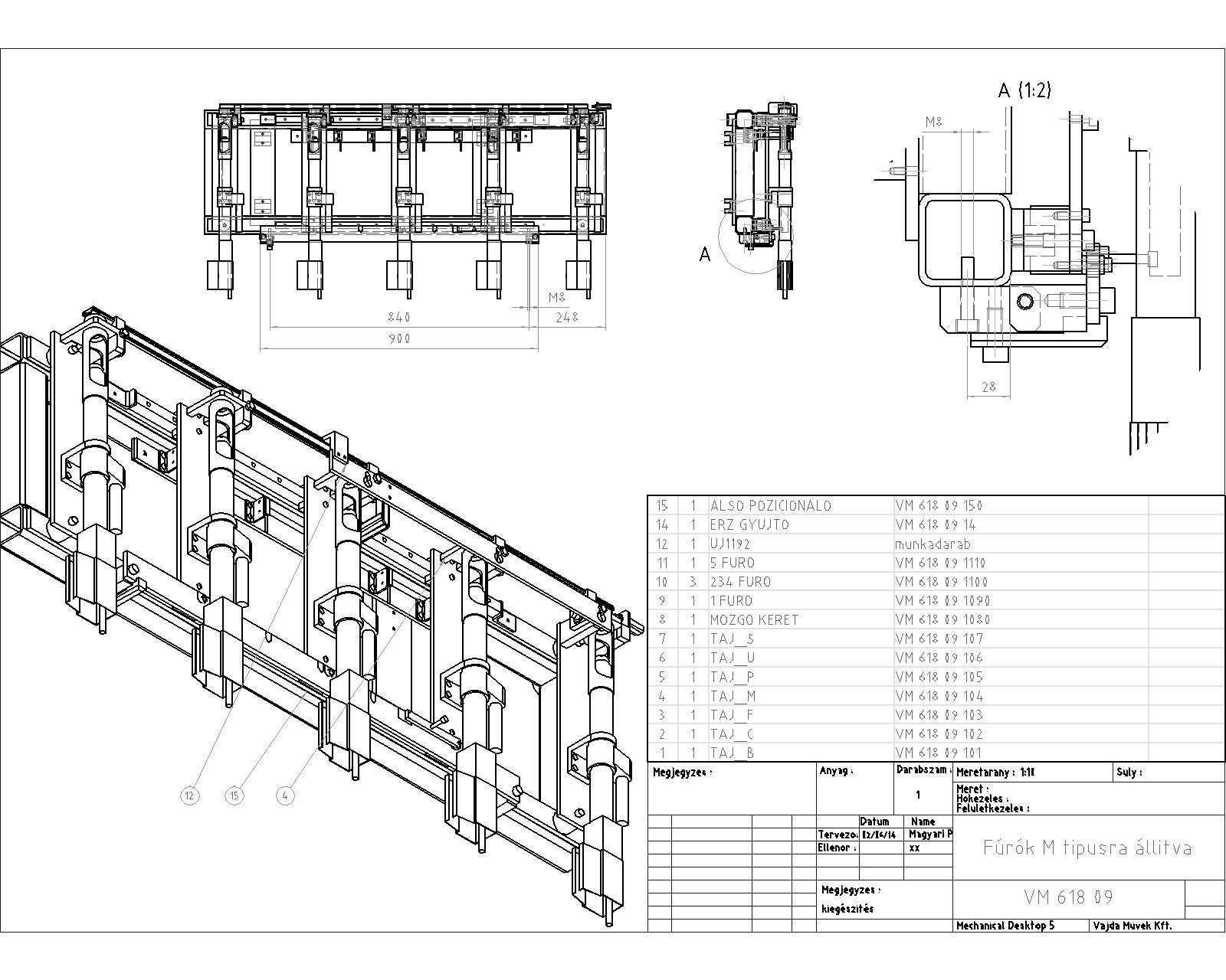
előtérben látszik a fűrészgép és a jobb oldali dugóbenyomó
egység rezgőadogatója a portálállvány alsó vezetékén állítható be a vágandó darabhossztól függően a bal oldali dugóbenyomó egység helyzete darabhossztól függően 2,3,4 vagy 5 db 2.8 mm-es furat egy vonalban való befúrása a feladat a portálállvány hátsó vezetékén található - az itt nem megjlenített - fúró kocsi. amelyen az 5 db pneumatikus fúrógép vzetéke található |
| a fúrókocsi részletei |
| Ellenőrző
automata |
Szerelő
automata |
Egyedi
gép |
Rendszerterv | Egyedi
bútor |
Kapcsolat |
| a
furatok kiosztása minden darabhossznál eltérő, ezért
középső 3 fúrógép egy lineárvezetéken eltolható és a
rögzitésüket egy tájolóléccel biztosítjuk az egész fúrókocsi - a karbantahatóság miatt - a portálállvány zsúfolt munkateréből kihúzható |
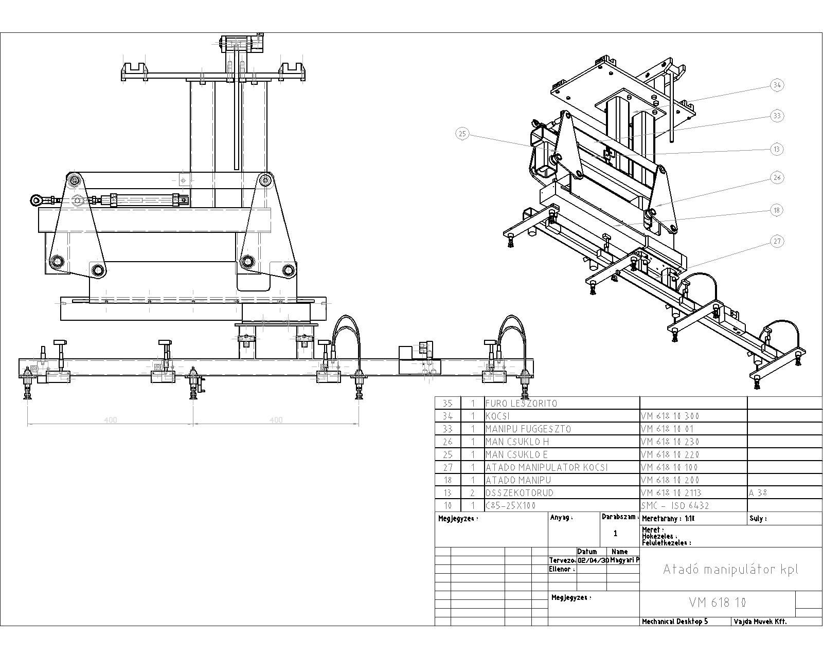
| a méretre vágott darabokat a
portálállványra függesztett manipulátor továbbítja a
technológiai állomások között |

| Ellenőrző
automata |
Szerelő
automata |
Egyedi
gép |
Rendszerterv | Egyedi
bútor |
Kapcsolat |

| Ellenőrző
automata |
Szerelő
automata |
Egyedi
gép |
Rendszerterv | Egyedi
bútor |
Kapcsolat |