Ellenőrző automata
Szerelő automata
Egyedi gép
Rendszerterv Egyedi bútor
Kapcsolat

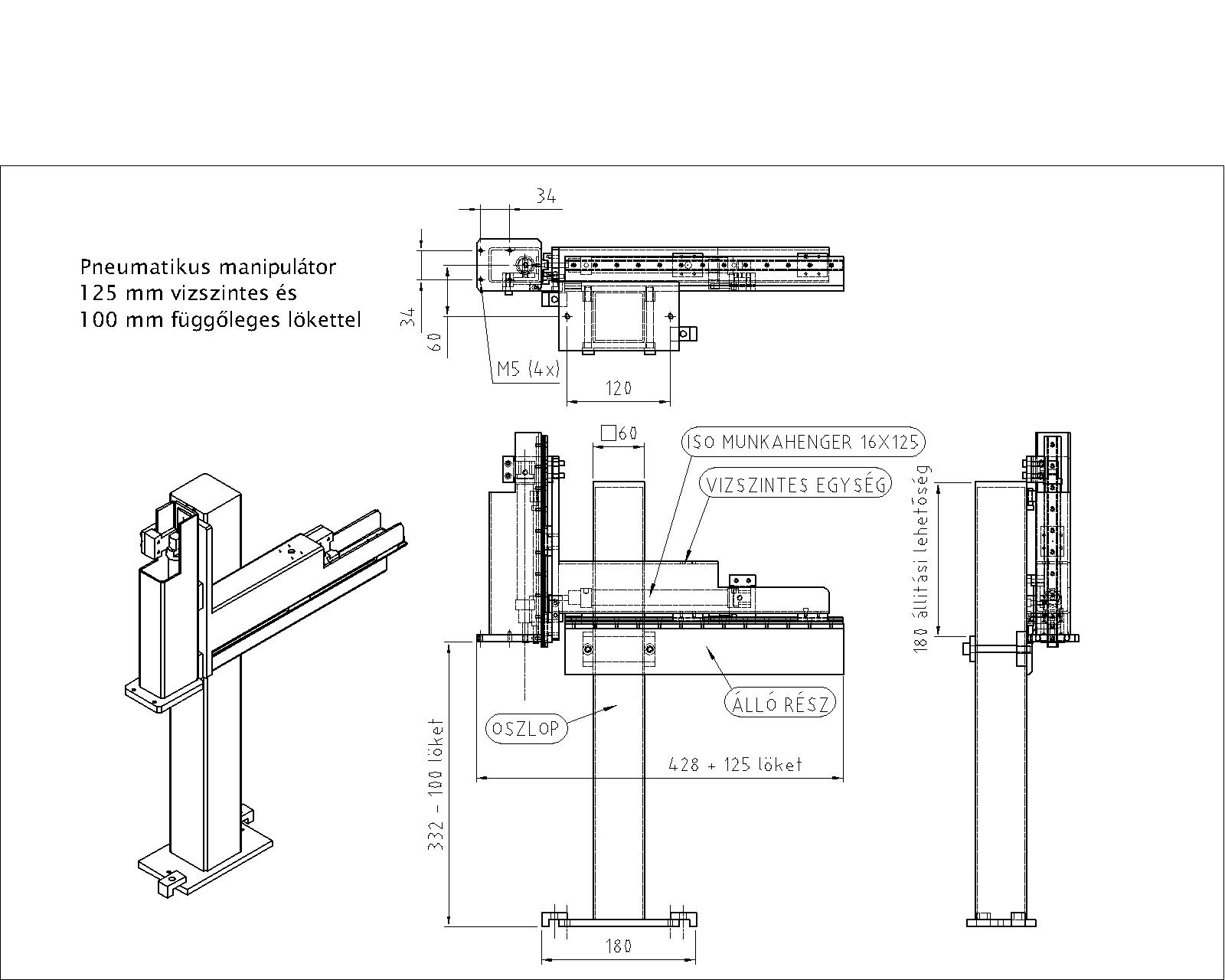
Fejlesztési munkánk egyik újrahasznositható terméke
a mintegy 300 gramm tömeget gyorsan mozgatni képes
M 125/100 típusú
pneumatikus manipulátor
beépítve, a szerelő körasztalt ábrázoló fényképen láthatja
vákuum korongos és mechanikus megfogókkal szerelten

főbb méreteit az alábbi CAD állományból nyert ábrán mutatjuk be


5 munkapoziciót kiszolgáló függesztett manipulátor

vissza a kezdő oldalra